Roofvogelstraat 44, HEINKENSZAND

€ 379.000,- k.k.

Roofvogelstraat 44, HEINKENSZAND
Roofvogelstraat 44, HEINKENSZAND
Roofvogelstraat 44, HEINKENSZAND

Omschrijving

Ruime twee-onder-een-kapwoning met garage en zonnige tuin op het zuidoosten

Algemeen
In een gezellige, kindvriendelijke woonwijk staat deze sfeervolle twee-onder-een-kapwoning met aangebouwde garage en serre. De ligging is ideaal: op loop- en fietsafstand van de dorpskern met winkels, supermarkten, scholen, het gemeentehuis en diverse sportaccommodaties.
Houdt u van fietsen of wandelen? Dan kunt u uw hart ophalen in de prachtige natuur van de Zak van Zuid-Beveland, met zijn karakteristieke bloe... Lees meer

Ruime twee-onder-een-kapwoning met garage en zonnige tuin op het zuidoosten

Algemeen
In een gezellige, kindvriendelijke woonwijk staat deze sfeervolle twee-onder-een-kapwoning met aangebouwde garage en serre. De ligging is ideaal: op loop- en fietsafstand van de dorpskern met winkels, supermarkten, scholen, het gemeentehuis en diverse sportaccommodaties.
Houdt u van fietsen of wandelen? Dan kunt u uw hart ophalen in de prachtige natuur van de Zak van Zuid-Beveland, met zijn karakteristieke bloemdijken en weidse uitzichten.
Dankzij de praktische indeling, royale ruimtes en fijne ligging is dit een heerlijk familiehuis voor gezinnen met opgroeiende kinderen.

Indeling
Aan de voorzijde beschikt de woning over een ruime oprit met plek voor twee auto’s. De voortuin is onderhoudsvriendelijk aangelegd met grind en lage beplanting.

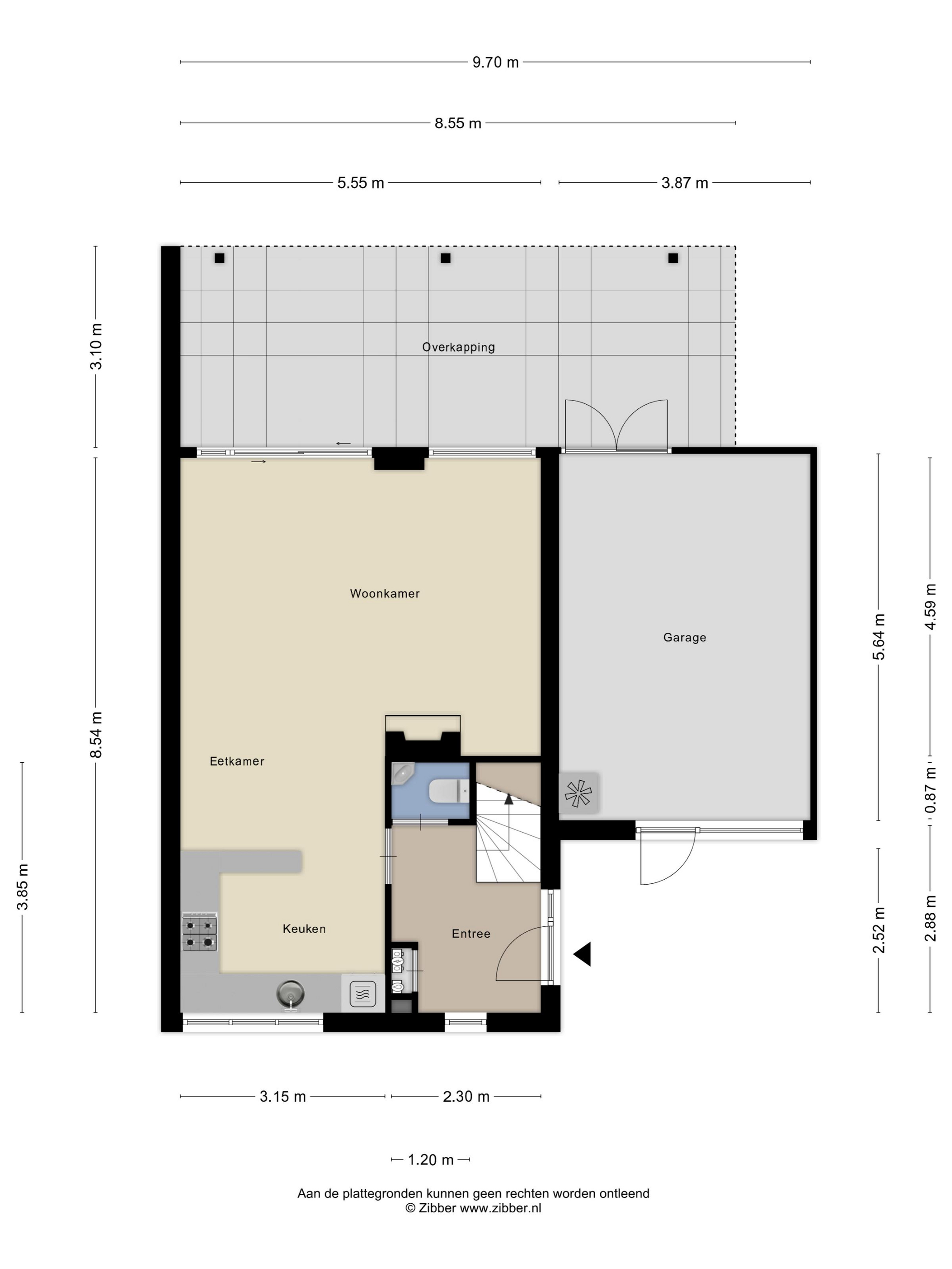
Begane grond
Entree met hal, meterkast, modern toilet (wandcloset) en trap naar de eerste verdieping. De sfeervolle, L-vormige woonkamer (ca. 30 m²) is heerlijk licht door de grote raampartijen op het zuidoosten. De zithoek is gesitueerd rond een strakke schouw met elektrische sierhaard. Via de grote schuifpui bereikt u de ruime veranda van ca. 25 m², waar u beschut kunt genieten van het buitenleven. Aan de voorzijde bevindt zich de moderne keuken (ca. 7 m², bouwjaar 2000) in praktische U-opstelling. De keuken heeft matwitte fronten met granieten werkblad en achterwand. Een halfhoog keukenblok vormt de natuurlijke overgang naar de woonkamer en biedt extra kastruimte. De keuken is voorzien van diverse inbouwapparatuur: combimagnetron, koelkast, vaatwasser en 4-pits gaskookplaat met RVS-afzuigkap.

Eerste verdieping
Overloop met toegang tot twee slaapkamers en de badkamer. De ruime hoofdslaapkamer (ca. 21 m²) is ontstaan door samenvoeging van twee kamers, maar kan eenvoudig worden teruggebracht naar de originele indeling. Vanuit hier bereikt u via een schuifdeur het balkon aan de tuinzijde. De tweede slaapkamer (ca. 7 m²) ligt aan de achterzijde. De nette badkamer (ca. 4 m², vernieuwd rond 2010) is volledig betegeld en voorzien van een inloopdouche met glazen scherm, wastafel en wandcloset.

Tweede verdieping
Via een vaste trap bereikt u de zolderverdieping met overloop, cv-opstelling en een ruime zolderkamer (ca. 10 m²). Ideaal als slaapkamer, werkplek of hobbyruimte.

Tuin
De royale achtertuin (ca. 12 meter diep en 11 meter breed) ligt heerlijk vrij en zonnig op het zuidoosten. De tuin is eenvoudig aangelegd met een groot terras en moestuintje, en biedt volop mogelijkheden om naar eigen smaak in te richten. Dankzij de eigen erfafscheiding geniet u van veel privacy.

Bijzonderheden
- Vraagprijs: € 379.000 k.k.
- Oplevering in overleg (snelle levering mogelijk)
- Bouwjaar 1977
- Inhoud woning incl. garage: ca. 461 m³
- Woonoppervlakte: ca. 108 m² | Garage: ca. 22 m²
- CV en warm water: HR-combiketel Remeha Tzerra Ace 28C (2020)
- Hardhouten kozijnen met dubbel glas. Vloer-, gevel- en dakisolatie
- Kunststof voordeur
- Meterkast: 5 groepen, kookgroep, groep voor zonnepanelen, aardlekschakelaar, glasvezel
- 6 zonnepanelen (2016)
- Perceelgrootte: 291 m² (Gemeente Borsele, sectie AH, nr. 3041)

Details

Overdracht

Vraagprijs
€ 379.000,- k.k.
Status
beschikbaar
Aanvaarding
in overleg

Bouw

Soort woning
woonhuis
Soort woonhuis
eengezinswoning
Type woonhuis
twee onder een kapwoning
Aantal woonlagen
3
Bouwvorm
bestaande bouw
Bouwjaar
1977
Huidige bestemming
woonruimte
Onderhoud binnen
goed
Onderhoud buiten
goed
Voorzieningen
rolluiken, tv kabel, buitenzonwering, schuifpui, dakraam, glasvezel kabel, zonnepanelen, natuurlijke ventilatie
Isolatie
dakisolatie, muurisolatie, vloerisolatie, dubbel glas

Energie

Energielabel
C
Verwarming
cv ketel
Warm water
cv ketel
C.V.-ketel
gas gestookte combi-ketel uit 2020 van Remeha Tzerra Ace 28C, eigendom

Oppervlakten en inhoud

Woonoppervlakte
108 m²
Perceeloppervlakte
291 m²
Inhoud
461 m³
Inpandige ruimte oppervlakte
22 m²
Bergruimte oppervlakte
5 m²
Buitenruimte oppervlakte
32 m²

Indeling

Aantal kamers
4
Aantal slaapkamers
3

Buitenruimte

Ligging
aan rustige weg, in woonwijk, beschutte ligging
Tuin
achtertuin met een oppervlakte van 132 m² en is gelegen op het zuidoosten

Bergruimte

Garage
aangebouwde stenen garage
Parkeergelegenheid
openbaar parkeren, op eigen terrein
Schuur/berging
vrijstaand hout

Plattegronden